
「リパーロ」は設置スペースに合わせて増設やサイズ変更が可能な連棟式の構造です。施工実績を基にした平面図も掲載していますので、検討の参考としてご活用ください。
’2026 works
2026.01施工 単棟2棟 設置場所:会社8F屋上
【サイズ】
W4000×D3000
同寸法2棟

図面:クリックで拡大

’2025 works
2025.12施工 1棟 設置場所:大学グラウンド
【サイズ】
W5000×D3000

図面:クリックで拡大

2025.12施工 16連棟 設置場所:ボートレース平和島

平面図:クリックで拡大

2025.12施工 2連棟 設置場所:会社ビル6F屋上
【サイズ】
W5900×D1930
(W2950+D1930)×2連棟

図面:クリックで拡大

2025.11施工 7連棟 設置場所:商業施設
【【サイズ】
W28880×D2230
(W5000×D2230)×1棟
(W3980×D2230)×6連棟
※支柱ベースプレート

図面:クリックで拡大

2025.11施工 6連棟「特注パーゴラ+ゆらぎ2」 設置場所:商業施設
【サイズ】
(W5000×D4000)×4連
W5600(特2連)×D4000
×H2700

図面:クリックで拡大

2025.09施工 2連棟+単棟 設置場所:商業施設バックヤード
【サイズ】
W7550×D2000×H2400
(W4300+W3250)×2連
W3600×D2190×H2550(単棟)
※支柱ベースプレート
※支柱ベースブロック

図面:クリックで拡大

2025.08施工 4連棟×2棟 設置場所:商業施設7階屋上
【サイズ】
W5000×D12000×H2680
(W5000×D3000)×4連
W5000×D12000×H2680
(W5000×D3000)×4連
※支柱ベースプレート

平面図:クリックで拡大

2025.08施工 4連棟 設置場所:PA
2025.07施工 2連棟 設置場所:商業施設
【サイズ】
W8000×D2000
(W4000×D2000)×2連棟

平面図:クリックで拡大

2025.07施工 6連棟 設置場所:プール入場券売り場
2025.04施工 6連棟 設置場所:レストランテラス
【サイズ】
L型特殊6連棟
支柱ベースプレート固定

平面図:クリックで拡大

2025.03施工 2棟 設置場所:道の駅
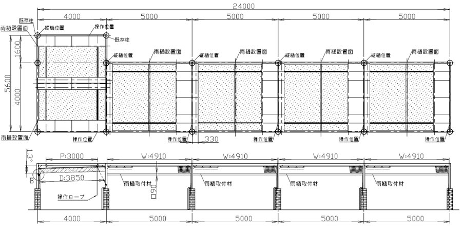
2025.03施工 7連棟 設置場所:会社ビル6F屋上
2025.03施工 5連棟+2連棟 設置場所:某施設
【サイズ】
右図参照
H2700~H3200

平面図:クリックで拡大

2025.03施工 3連棟 設置場所:PA
2025.02施工 10連棟(特注パーゴラ+ゆらぎ2) 設置場所:商業施設
【サイズ】
W36450×D5500×H2700
(W4400×D4000)×5連
その他5連棟

平面図:クリックで拡大

’2024 works
2024.12施工 8連棟+12連棟 設置場所:公共施設(公園)
【サイズ】
W7600×D11600×H2600
(W3800×D2900)×8連

平面図:クリックで拡大

W7600×D17400×H2600
(W3800×D2900)×12連


2024.12施工 6連棟 設置場所:商業施設1F
【サイズ】
W5000×D15000×H2700
(W5000×D3000)×4連
(W5000×D1500)×2棟

平面図:クリックで拡大

2024.11施工 4連棟 設置場所:会社ビル3F屋上
【サイズ】
W10000×D6000×H2500
(W5000×D3000)×4連

平面図:クリックで拡大

2024.11施工 2連棟 設置場所:商業施設4F屋上テラスデッキ
【サイズ】
W5000×D5080×H2700
(W5000×D2700)×1
(W5000×D2380)×1

平面図:クリックで拡大

2024.09施工 2棟 設置場所:SA
【サイズ】
W5000×D3000×H2500
W4000×D3000×H2500

平面図:クリックで拡大

2024.08施工 2連×2棟 設置場所:商業施設
【サイズ】
W10000×D3000×H2600
(W5000×D3000)×2連

平面図:クリックで拡大

【サイズ】
W10000×D3000×H2600
(W5000×D3000)×2連
平面図:上図同一

2024.06施工 6連棟 設置場所:商業施設
【サイズ】
W10000×D8250×H2700
(W5000×D2750)×6連

平面図:クリックで拡大

仮組
2024.06施工 2連棟 設置場所:商業施設
【サイズ】
W4000×D4000×H2500
(W4000×D2000)×2連

平面図:クリックで拡大

ブロックカバー
(ウレタンクッション)
2024.04施工 連棟 設置場所:商業施設(大宮そごう10F)リパーロE仕様
【サイズ】
W10000×D6000×H2700
(W5000×D3000)×4連

平面図:クリックで拡大

【サイズ】
W8000×D3000×H2700
(W4000×D3000)×2連

平面図:クリックで拡大

【サイズ】
W3000×D3000×H2700

平面図:クリックで拡大

2024.03施工 1棟 設置場所:SA
2024.03施工 1棟 設置場所:SA
2024.02施工 1棟 設置場所:商業施設(4F屋上テラス)
【サイズ】
W3660×D2940×H2600

平面図:クリックで拡大

’2023 works
2023.12施工 1棟 設置場所:オフィス(4F屋上)
【サイズ】
W5000×D3000×H2700

平面図:クリックで拡大

2023.08施工 1棟 設置場所:オフィス(2F屋上)
【サイズ】
W3600×D3000×H2500

平面図:クリックで拡大

2023.11施工 8棟 設置場所:商業施設(13F屋上テラス)
2023.08施工 4連棟 設置場所:商業施設(2Fテラス)
2023.07施工 1棟 設置場所:商業施設(8F屋上)
【サイズ】
W4800×D3000×H2700
※ベースプレート固定

平面図:クリックで拡大

2023.07施工 1棟 設置場所:商業施設
【サイズ】
W4328×D2000×H2500
※ベースプレート固定

平面図:クリックで拡大

2023.07施工 1棟 設置場所:学校施設
【サイズ】
W5000×D4000×H2700

平面図:クリックで拡大

2023.07施工 3連棟 設置場所:商業施設
2023.07施工 1棟 設置場所:会社屋上(喫煙所)
2023.05施工 1棟 設置場所:商業施設
【サイズ】
W3500×D2500×H2660

平面図:クリックで拡大

2023.04施工 1棟 設置場所:商業施設(通路用)
【サイズ】
W5000×D1600
支柱ベースアンカー止め

平面図:クリックで拡大

2023.03施工 2連棟+1棟+2連棟 設置場所:SA
●「リパーロ」の詳細はこちらで!
●他のスライドオーニング施工事例はこちらから
■弊社はタカノ株式会社の販売・施工業者です。
■テント生地:プレコントランの詳細をメーカーホームページでご覧になりたい方はこちらへ



























